ミサワホームが「MISAWA DESIGNERS’ CODE MARGE」を発表 – バウハウスの思想を具現化した、時間とこころの余白をデザインする住まい

ライフスタイル

バウハウスの理念とミサワホームの住まいづくり

ミサワホームは、バウハウスの「人が主役」となるデザイン思想に深く共感し、その理念を「シンプル・イズ・ベスト」というデザイン思想として日本の住まいづくりに取り入れています。単なる造形の模倣にとどまらず、工業化社会における「真に豊かな暮らしとは何か」という問いに対し、合理的かつ普遍的な美しさを追求するバウハウスの教育思想そのものを、日本の住宅設計に活かしてきました。

また、ミサワホームは1989年からバウハウス関連作品の収集を開始し、1996年には日本で唯一のバウハウス専門美術館「ミサワ バウハウス コレクション」を開設しました。現在では約1,500点の作品、約1,200点の資料、約13,000冊の芸術関連の蔵書を所蔵しており、日本最多のバウハウス関連物を保有しています。同館では独自の企画展を通じてバウハウスの造形教育やデザイン理論を紹介するほか、2025年には国立新美術館や兵庫県立美術館で開催された「リビング・モダニティ展」へ所蔵作品を出展するなど、教育・普及活動にも積極的に取り組んでいます。

2025年にバウハウスがデッサウに移転して100周年を迎えたことを記念し、ミサワホームではこの貴重な資産を次世代に伝えるためのプロモーション活動を展開しています。特設サイトやテレビCMを通じて情報発信を強化する中で、その思想を具現化した象徴的な住まいとして「MISAWA DESIGNERS’ CODE MARGE」が誕生しました。

バウハウス×ミサワホーム 特設サイトでは、モダンデザインの源流であるバウハウスについて、「ミサワ バウハウス コレクション」の代表的な作品やテレビCM「バウハウス×ミサワホーム」などが紹介されています。

「MISAWA DESIGNERS’ CODE MARGE」のコンセプト

「MARGE」という名前は、ドイツ語で「余白・ゆとり」を意味します。共働きで多忙な日々を送る30~40代のファミリーを主なターゲットとし、気候変動や社会的ストレスから離れ、時間とこころに「余白」を生み出す住まいを提案します。住む人に寄り添い、長く愛される家であってほしいという願いが込められ、シンプル・イズ・ベストのデザインが実現されています。

ミサワホームは「MISAWA DESIGNERS’ CODE MARGE」を通じて、住む人がそれぞれ自分らしい暮らしを描ける、心身を豊かにする新しいスタンダードを提案しています。

MISAWA DESIGNERS’ CODEについて

「MISAWA DESIGNERS’ CODE」は、「シンプル・イズ・ベスト」の思想のもと、ミサワホームが培ってきたノウハウや設計思想をベースに、デザインテーマごとにパッケージ化されたものです。外観デザインの基本となる「作法のコード」、質感や色合いを決める「素材のコード」、ディテールにこだわる「造りのコード」の3要素から構成されています。これにより、住まいを検討する時間や労力を抑えつつ、理想のデザインを実現できる手法が採用されています。

建築デザインにおける「デザインコード・パッケージ」

プロダクトコンセプト:3つのデザイン

空間デザイン:家族の心身の健康を守り、おおらかに暮らせる

「MARGE」の最大の特徴は、北側に大きく開いた窓と、外構パネルで囲まれた「ノースガーデン(北庭)」です。北向きの大開口は直射日光を避け、暑さや眩しさを防ぐため、カーテンを開けたまま一日を快適に過ごすことができます。シミュレーションでは、南向きの開口でカーテンを併用する場合と同等の健康的な明るさ(等価メラノピック照度250lx以上)が、北向きの大開口でも十分に得られるという結果が出ています。外構パネルが周囲からの視線を遮るため、カーテンを閉めずに開放的に過ごせるプライベートな外部空間が実現され、夏でも日陰で涼しく、子どもの遊び場としても適しています。

一方、南側の窓はあえて低く抑えられ、2階のボリュームを張り出すことで強い日射を遮ります。さらに、南の下方から風を取り込み、北の高い窓へと風を抜く微気候設計が採用されています。室内から室外への視線をコントロールし、電線や街灯などの視覚的なノイズをカットすることで、住まいに静寂をもたらします。

北向き大開口とノースガーデン

生活デザイン:家族の気配を感じ、自分らしく描く「余白」の空間

1階は「パラレルレスLDK」と呼ばれる大きなワンルームのパブリックスペースです。大開口に面した吹き抜けが設けられ、ノースガーデンともフラットにつながることで、垂直・水平方向に広がりを感じさせる空間となっています。リビング・ダイニングには特定の方向性がなく、家具を自由にレイアウトできるため、住む人が自分好みの居場所を作り出すことができます。

吹き抜け越しにLDKとつながる位置には「ファミリーライブラリー」が配置されています。これにより、在宅ワークに集中しつつも、家族に声をかけられるなど、ほどよい距離感でつながることが可能です。キッチンやランドリールームは、複数人でもスムーズに作業できるよう広さが確保されています。シューズクロゼット、納戸、ファミリークロゼットなど、大型の収納スペースが各所に設けられており、片付けのストレスを軽減します。生活動線の効率化と空間の広がりが追求され、住む人が主役となる住まいが実現されています。

自由なレイアウトが可能な「パラレルLDK」

意匠デザイン:究極のシンプルを追求した「デザインコード」

リビング・ダイニングは、開口部を南北のみに絞り、東西面は壁が広く残るように設計されています。建具や枠材には新規色の「Haku(=白)」が採用され、境界のない白い壁面が演出されています。お気に入りの家具や照明、グリーンをコーディネイトして暮らしを楽しめる、ホワイトインテリアが特徴です。

外観もまた、清潔な白い箱をイメージしています。前面のボリュームを地面から浮かすように作られたオーバーハングが、建物に軽やかな印象を与えます。屋根の縁の厚みを数ミリまで薄くすることで建物の輪郭が曖昧になり、壁面をよりシンプルで美しく見せる効果があります。

新規色「Haku」の枠材を採用した開口

商品概要

  • 商品名: MISAWA DESIGNERS’ CODE MARGE(ミサワ デザイナーズ コード マージ)

  • 構造・工法: 木質パネル接着工法

  • 運用: 自由設計

  • 販売エリア: 全国(沖縄県を除く)

  • 発売日: 2026年3月16日(月)

  • 商品サイト: https://www.misawa.co.jp/kodate/syouhin/marge/

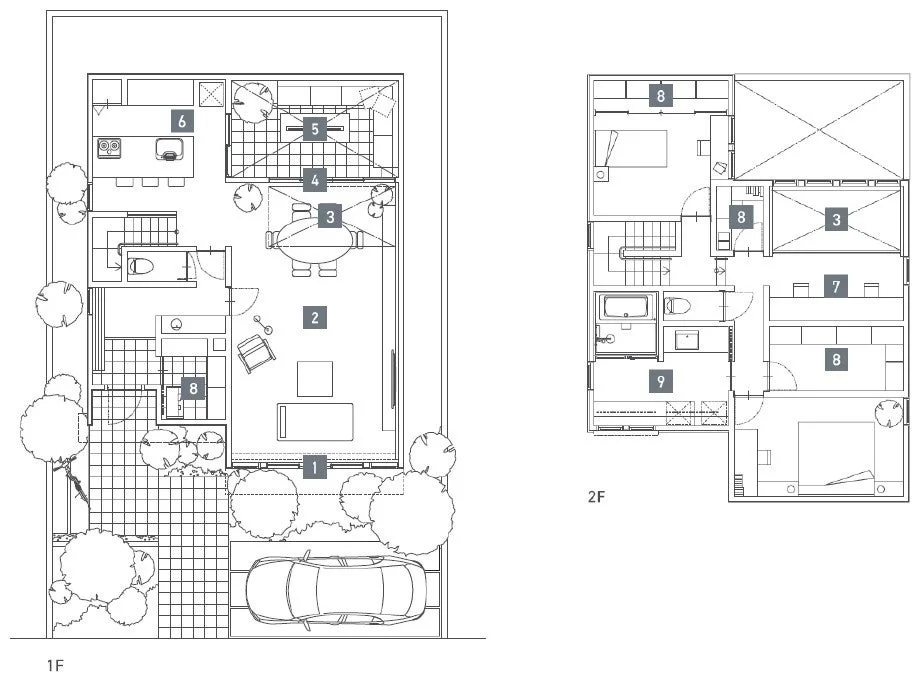
参考資料:コンセプトモデル「39-2SW-1」

2階建て住宅の平面図

物件の主要な特徴と建築仕様

関連リンク: https://www.misawa.co.jp/corporate/news_release/2026/0316/

コメント