『LEGALAND西五反田ANNEX』の物件概要
『LEGALAND西五反田ANNEX』は、東京都品川区西五反田4丁目に位置し、東急目黒線「不動前」駅から徒歩8分という優れたアクセス性を誇ります。目黒・五反田エリアへの移動がスムーズでありながら、物件周辺は低層住宅が中心の落ち着いた環境が広がっています。
物件の詳細は以下の通りです。
-
所在: 品川区西五反田4丁目
-
交通: 東急目黒線「不動前」駅 徒歩8分
-
敷地面積: 140.49㎡
-
延床面積: 387.48㎡
-
構造・規模: 鉄筋コンクリート造地下1階付地上4階建
-
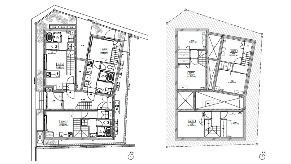
総戸数: 12戸(1K:6戸 / 1R:3戸 / 2DK:3戸)
『LEGALAND西五反田ANNEX』の主な特徴

本物件の外観は、一棟でありながらもまるで3棟が独立して建ち並ぶかのようなボリューム構成が採用されており、都市景観にシャープで洗練された印象を与えます。コンクリート打放しを基調とした素材感と、計算された開口部の配置により、住まう人の感性に静かに響くデザインが実現されています。

最大の特徴は、居室の独立性を高める空間構成です。全ての住戸が角部屋感覚で暮らせるよう配置されており、隣戸との視線や生活音への配慮が徹底されています。これにより、プライバシーが確保された快適な居住空間が提供されます。

さらに、メゾネット住戸プランも用意されており、上下階を使い分けることで戸建てのような生活が可能です。多様なライフスタイルに対応する住まい方が提案されています。
デザイナーズ賃貸マンションシリーズ「LEGALAND」とは

「LEGALAND」は、住友林業グループである株式会社LeTechが展開するデザイナーズ賃貸マンションシリーズです。「LEGA」がイタリア語で「結ぶ」「繋がる」を意味することから、「建物と人々、人々と人々が繋がる場所を提供したい」という想いが込められています。
このシリーズは、以下の特徴を持っています。
1. 使いやすくゆとりのある空間
「壁式構造」を採用することで、室内に柱や梁がない、使いやすい居住空間を実現しています。各物件には入居者のニーズに応じた充実した設備が備えられています。

2. 立地へのこだわり
人気の城南・城西エリアを中心に展開されており、駅近の好立地物件にこだわり、高い生活利便性を提供しています。

3. デザイン性の高さ
外観はコンクリート打放しをベースとした、シンプルながらもモダンでスタイリッシュなデザインです。画一的なマンションではなく、その土地の形状や周辺環境に調和するデザインが追求されています。
4. 高いキャッシュフロー効果
これまでの開発ノウハウを活かし、土地の収益性を最大化することで、投資家へ高キャッシュフローの物件を提供しています。「LEGALAND」はデザイン性と収益性の両面で国内外から高い評価を得ています。
5. 「LEGALAND」に込められた想い
「LEGALAND」は、都心、駅近の好ロケーション、広い空間を活かすスタイリッシュな設計、メンテナンス負荷が少なく周辺環境にも優しい設計を提案し、「住む人、持つ人、街の人へ配慮した建物」を目指しています。

「LEGALAND」シリーズに関する詳細情報は、公式サイトでご確認いただけます。
- LEGALAND公式サイト: https://legaland.jp/


コメント